进口超高压冲量安全装置A49Y-PW5410V,上海祝富阀门
2013-04-21 21:16:23 上海祝富阀门有限公司 发布 
|
■A49Y-PW5410V ■说明 本装置供蒸汽工作压力为P=50MPa;温度为t=540℃的电站锅炉上使用,防止锅炉内介质压力超过允许值,以保证锅炉安全运行。 ■特点 冲量式安全装置为主,辅阀配套使用,具有排放能力大,调整方便,机械与电器双重保护,安装维护工作量小等特点。 ■工作原理 当锅炉内介质压力超过允许值时,冲量安全阀首先开启,蒸汽进入主安全阀活塞室,使主安全阀打开,对外排汽,待锅炉内余压排除后,冲量安全阀关闭,切断进入主安全阀活塞室的蒸汽,主安全阀在弹簧和介质作用下自行关闭。
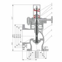
■结构简述 1、冲量安全装置如图所示,主要由弹簧安全阀、主安全阀、截止阀、节流阀等所组成。冲量安全阀为弹簧安全阀,它主要由阀体、阀盖、弹簧、阀瓣等零件组件。通过调节弹簧来调节安全阀开启压力。 冲量安全阀还分别带有用来开启或关闭用的电磁铁,机械和电器动作互不干扰。
2、主安全阀结构如图所示,双排汽,两端为法兰连接结构,主要由阀体、阀盖、缓冲阀、活塞室、阀瓣、阀杆等零件组成。缓冲阀装设一只止回阀,可改变缓冲时间,在主安全阀动作过程中起缓冲作用,避免密封面或阀瓣损坏。
3、冲量安全阀阀座、阀瓣密封面均用钴基硬质合金堆焊而成,主安全阀阀座、阀瓣密封面均由钴基硬质合金喷焊而成。
4、冲量安全并上部带有开启和关闭电磁铁,关闭用电磁铁平时可以不通电,但当阀门密封面泄漏时,可长期通电使阀门密封,或当机械调整回座压力过低时,接通电源促使阀瓣回座,以获得较高的回座压力。
5、冲量安全阀出厂前经密封试验、灵敏性试验。
■主要零件材料
2、冲量安全阀
■安装说明 1、主安全阀A49Y-PW5410V DN125应与冲量安全阀A49Y-PW5410V DN20配套安装。冲量安全阀引出管与主安全阀的入口管之间应保持一段较长的距离,电接点压力表和主安全阀入口管之间的距离不得小于5倍主安全阀入口径,以免主安全阀动作时,因排汽影响电接点压力表和弹簧安全阀工作稳定性。 2、冲量安全阀安装前,应将管路冲洗干净。 3、主安全阀与冲量安全阀必须垂直安装,主安全阀在安装焊接后,要进行局部热处理。 4、主安全阀应紧固在构架上,该构架应能承受主安全阀排汽时产生的反作用力,主安全阀的排汽管应有专门化的吊架避免排汽管的质量(重量)与其它作用力作用在主安全阀上及主安全阀与排汽管之间的连接法兰上,在排汽管的最低点,应考虑疏水,以免主安全阀排汽时产生水击。 5、冲量安全阀与电磁铁一起装在一个专门的支架上,阀门上杠杆与电磁铁连接要灵活,不得有卡涩现象。冲量阀应装在便于维修和调试,灰尘少、空气干燥、无振动的地方,其环境温度不应高于70℃,相对湿度不应超过80%。 6、为了保证冲量安全阀动作自如,冲量安全阀的回座杠杆头部的圆弧部分与冲量安全阀压杆端部的距离应调到:冲量安全阀实际行程+1mm(用护罩顶部M10×40紧固螺钉调之)。
代理进口阀门有: 美国CARO卡罗国际集团、德国FRING福林、英国UK(优科)阀门国际有限公司、德国TOP(托普)阀门、德国(ROTORK)罗托克阀门有限公司等进口产品、日本北泽(KITZ)、日本阀天(VENN)
上海祝富阀门有限公司—安全阀类产品
【弹簧微启封闭式安全阀】【带扳手弹簧微启式安全阀】 【弹簧微启封闭式高压安全阀】【弹簧微启式外螺纹安全阀】 【带扳手弹簧微启式安全阀】【弹簧全启封闭式安全阀】 【带扳手弹簧全启式安全阀】【弹簧全启式安全阀】 【弹簧全启封闭式高压安全阀】【弹簧全启式外螺纹安全阀】 【波纹管平衡式安全阀】【高温高压安全阀】 【A51H单杠杆安全阀】【GA42H单杠杆安全阀】 【双杠杆安全阀】【主安全阀】 【先导式安全泄压阀】【GA49Y脉冲式安全阀】 【GA49H脉冲式安全阀】【GYA系列液压安全阀】 【双联弹簧式安全阀】【蝶形弹簧式安全阀】 【A48Y弹簧全启式安全阀】【A69Y主安全阀】 【弹簧安全阀】【炼油专用安全阀】 【保温夹套安全阀】【波纹管平衡弹簧安全阀】 【先导式安全泄压阀】【安全溢流阀】 【平行式安全回流阀】【高压冲量安全装置】 【中温中压冲量安全装置】【超高压冲量安全装置】 【内装式安全阀】【A28W全铜外螺纹安全阀】 |
||||||||||||||||||||||||||||||||||||||||||||||||
- 网友评论:
- 已有0条评论


搜索




